DISCLAIMER: The author of this site wants you to know that he is 100% in favor of the preservation and correct restoration of historic pipe organs and their related components. These projects are not intended as a guide for the repair of an existing theatre organ toy counter. They were developed for the use of persons who wish to add a toy counter to an organ that either was not originally equipped with one, or in the case of virtual organs, where an owner desires to have a mechanical "moving parts" devide that is visible or usable on an electronic organ. Under no circumstances do we advocate the use of these devices, or the application of this technology as a means of retrofitting an otherwise working or repairable theatre organ original component. |
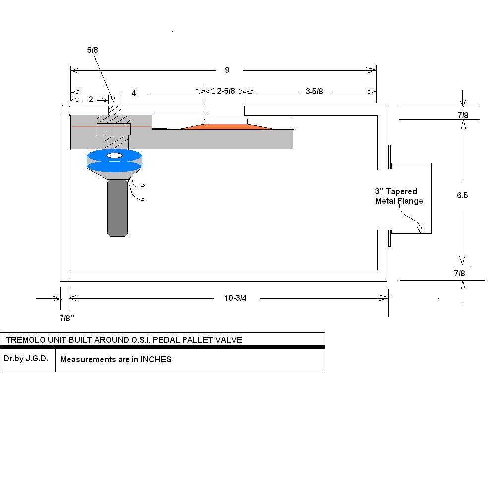
This is an article demonstrating construction
of a simple low-pressure organ tremolo unit. The basic component is an
Organ Supply Industries pedal pallet assembly. We begin by constructing
a simple four-sided box, with a bottom, around the pipe valve unit. The
5581 series valve is sold in three sizes. We selected the 5581.3 which
is a 3" diameter valve. |
![]() |
![]() |
The lumber selected for the enclosure is 1x8
Poplar, selected for its grain quality, strength and uniformity. |
![]() |
![]() |
![]() |
WHOOPS! What's wrong with this picture? If
you noticed that there is no way for the air to reach the pallet and valve,
you are correct! We did have a design flaw in the original concept, but
we caught it before the unit was fully assembled. Rather then re-cut the
box. we decided to add on to the box in the form of a manifold attached
to one end. The photo below shows how the manifold was constructed. The
project plans will, however, take this into account, and the sides of
the box will be cut to allow room for the air manifold. |
![]() |
Here is the add-on manifold to allow tremmed
air to reach the valve. |
![]() |
Click on the image below to see an enlarged
version of the picture. |
![]() |
![]() |
| As the unit nears completion, the sides and top are assembled and sanded. Next step will be to place a coat of varnish on the unit and wire up the printed circuit oscillator unit. |
![]() |
FINISHED UNIT, WITH PULSER BOARD INSTALLED,
IS NEATLY MOUNTED UNDER PIPE CHEST |
![]() |